Find Home & Room 物件情報

- 中古戸建
白岡市西3丁目 2階建 4LDK 中古戸建
おすすめポイント!
日当たり良好/積水ハウス施工軽量鉄骨造/街道近く
| 価格 | 9,990,000円 | ||
|---|---|---|---|
| 所在地 | 埼玉県白岡市 西3丁目 地図で見る | ||
| 交通 |
JR東北本線 白岡駅 徒歩30分 バス(白岡西3丁目 乗10分 停歩3分) |
||
| 物件種別 | 中古戸建 | ||
| 築年月 | 1982年12月(築43年5ヶ月) | ||
| 新築/中古 | 中古 | ||
| 面積 | 103.63m² | 計測方式 | - |
| 建物階数 | 地上2階 | 部屋階数 | -階 |
| 建物構造 | 軽量鉄骨 | ||
| 敷地面積 | -m² | 延べ床面積 | 173.79m² |
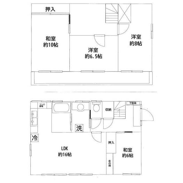
| 間取内容 |
4LDK LDK 16畳 和室 6畳 和室 10畳 洋室 6.5畳 洋室 8畳 |
||
| 駐車場/駐輪場 | - | ||
| 取引態様 | 専任 | ||
| 引渡/入居時期 | 相談 | 現況 | 居住中 |
| 地目 | 宅地 | 用途地域 | 第一種低層住居専用地域 |
| 都市計画 | 市街化区域 | 地勢 | 平坦 |
| 土地面積 | 173.79m² | 計測方式 | 公簿 |
| 建ぺい率 | 60% | 容積率 | 200% |
| 土地権利 | 所有権 | 接道状況 | 一方 |
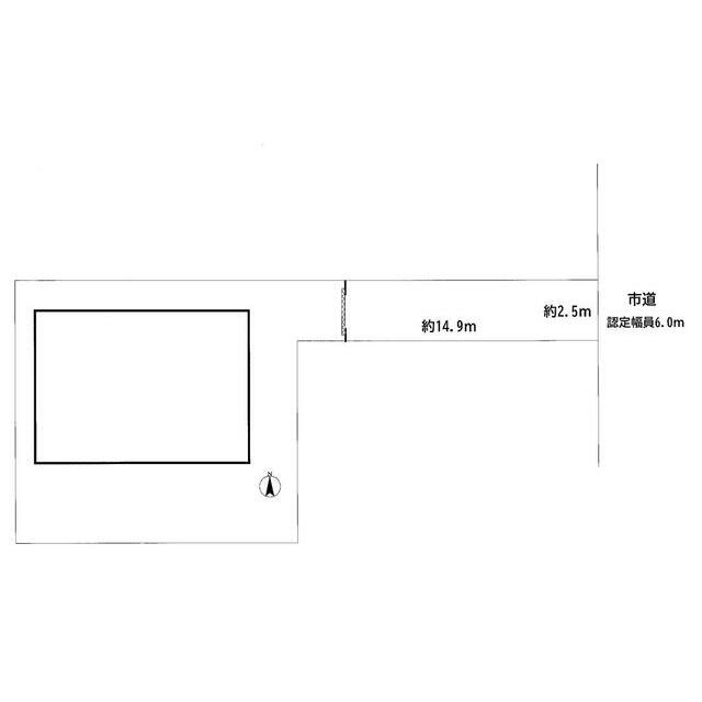
| 接道1 | 東 / 2.5m / 公道 / 幅員6m | ||
| 周辺環境 |
白岡市立西小学校 白岡市立白岡中学校 西白岡郵便局(距離:977m) セブン-イレブン白岡西5丁目店(距離:304m) |
||
| 物件番号 | 0501 | 掲載期限日 | 2024/10/13 |
| 自社物 | - | 状態 | 売出中 |
| その他 |
ご成約の際は、仲介手数料(売買代金の3%+6万円×1.1)を申し受けます。 |
||
※掲載の情報が現状と異なる場合には、現状を優先するものとします。
この物件への
お問い合わせ
「白岡市西3丁目 2階建 4LDK 中古戸建」について、
どんなことでもお気軽にお問合せ下さい。
※弊社の個人情報保護方針についてはこちらをご覧ください。

お問合せ物件
白岡市西3丁目 2階建 4LDK 中古戸建
価格:999万円
間取り: 4LDK 面積: 103.63m²
間取り: 4LDK 面積: 103.63m²



